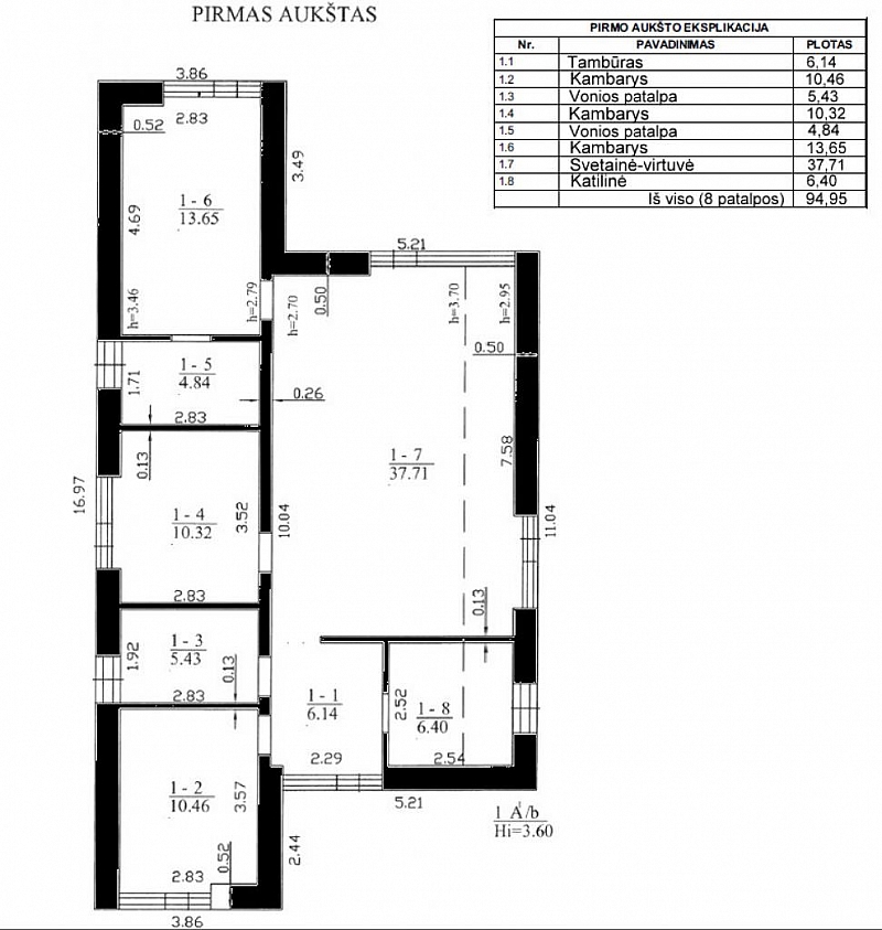
*Kambarių skaičius - 4 (erdvi svetainė sujungta su virtuve ir 3 miegamieji)
*Vonios kambariai - 2
*Katilinės patalpa
*Elektra
*Miesto vandentiekis
*Miesto nuotekos
*Lietaus kanalizacija
*Šildymas - dujomis
*Dideli vitriniai langai suteikia daug šviesos.
*Geras namo pastatymo kampas, atsižvelgiant į pasaulio šalių išdėstymą. Ryte švies saulė į terasą, kurioje jaukiai gersite rytinę kavą, o vakare jūsų nevargins kaitra ir maloniai leisite vakarus su šeima, draugais ar knyga.
*Kvartalas sparčiai kuriasi, todėl labai nedaug lieka važiavimo ne asfatuotu keliu.
Namo baigtumas:
100 procentų išorės.
85 procentai vidaus. Yra galimybė namą įrengti pagal kliento pageidavimą.
Statybų eiga fiksuota foto medžiaga.
*Stogas - skarda, šiltintas 25 cm akmens vata ir 5 cm uždarų porų poliuretano puta
*Pamatai - gręžtiniai šiltinti 20 cm putplasčiu
*Fasadas - struktūrinis tinkas ir degintas medis (dengta PIR izoliacine plokšte)
*Sienos - Wienerberger keraminiai blokeliai, šiltinimas 30 cm putplasčiu
*Langai ir lauko durys - aukštos kokybės vokiečių gamintojo "VEKA"
*Išvedžiotas grindinis šildymas (juodgrindės, betonas)
*Išvedžioti ortakiai rekuperacijai
*Išvedžiota santechnika
*Išvedžiota elektros instaliacija, apšvietimas, apsauginės bei priešgaisrinės signalizacijos
*Paruoštas pajungimas dujiniam katilui
Narsiečiai – kaimas Kauno rajono savivaldybėje, 1 km į šiaurę nuo Garliavos. Šiaurinė Narsiečių kaimo dalis yra prijungta prie Kauno miesto, todėl labai daug miesto privalumų: susiskiekimas, komunikacijos, infrastruktūra.

Radote tinkamą pasiūlymą? Ieškote panašaus objekto? Norite parduoti? Skambinkite jau dabar!
+37065511375 latava4@latava.lt